PLANS for a new housing development on the edge of Caldicot will feature approximately 115 new houses.
Plans for the Church Farm Caldicot development were shared with the public by HGH Planning yesterday (27th February) at an exhibition at St Mary’s Community Hall.
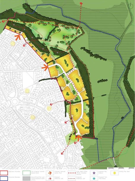
The development, which borders the north east corner of the town is approximately 25 acres and is divided into two distinct parts. More than half the site will be green open space with the remainder dedicated to the housing.
Access to the majority of the houses is proposed via Heol Teifi and Heol Sirhowy while a limited number of residential units are proposed off an existing access point on Clos Ystwyth.
The development is expected to include a broad range of house types and tenure and 35 per cent affordable housing.
Approximately 10 acres has been reserved for community parkland, and the north of the development will include areas for play and recreation and walking tracks and more.
The proposal will also extend the edge of the town to border with a Site of Special Scientific Interest (SSSI).
Residents at the public exhibition were wary of the development with many expressing concerns about the over-development of the area, flooding risks, the strain it will cause on the local roads and infrastructure including schools and doctors.
Resident Kevin Hall, who lives on one of the proposed access points, was vocal in his objection.
“We don’t need another housing development in the area. The roads can’t cope, the two planned roads in there weren’t built for this,” he said.
“The view of the SSSI will go, and all the birds that live there will fly away and won’t come back.
“They say they are giving us this park but that is there because there is public right of way.
“You can’t get into the doctors or the schools or the dentists and each of these houses will bring two new cars, we just can’t cope.”
Plans are expected to be submitted to MCC by the end of March.
Comments
This article has no comments yet. Be the first to leave a comment.